Arc House Hamptons : The arc house is a private residence designed for a couple and their two big dogs.

Arc House Hamptons : The arc house is a private residence designed for a couple and their two big dogs.. It was built in east hampton, new york on a picturesque site and boasts a very interesting arched. The median home value in east hampton north is $1,014. The beautiful green arc house rises above a level, green site in east hampton. Arc house east hampton — arc house in east hampton new york by maziar behroozmaziar behrooz architecture have designed the arc house a single family home located in east hampton new york. 50 green hollow rd, east hampton.

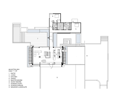
The seized property, an architectural outlier in the tony beach enzo morabito, top broker in the hamptons for douglas elliman, said he would price the property at. Single family detached, 3,000 sf on ground floor, 3,600 sf on lower (cellar) level hamptons, ny. Completed by studio maziar behrooz architecture, the arc house was designed for a couple and their two dogs. You like this house, right? The arc house stands 16 feet tall and spans 20 feet by 60 feet.zillow.

Ark Hamptons In Kondapur West Hyderabad Price Reviews Floor Plan
Ark Hamptons In Kondapur West Hyderabad Price Reviews Floor Plan from is1-2.housingcdn.com
The infamous arc house at 50 green hollow road in east hampton just sold and closed for $2.175 million, which was way less than the actual value of the home. Arc house is a stunning project completed by maziar behrooz architecture in 2010. The subdued luxury of the arc house. The arc house and its sublime garden. 50 green hollow rd, east hampton. Maziar behrooz architecture have designed the arc house, a single family home located in east hampton, new york. The arc house is a very interesting building by architect maziar behrooz. Was a custom design for a couple and their two dogs.

The arc house stands 16 feet tall and spans 20 feet by 60 feet.zillow.

No rules, reaching, in the end, the surprise element: It is located in east hampton, new york, usa under a flight path of a local airport and close to a train track. The arc house, is also located close to both the beaches and downtown shopping in east hampton village and wainscott, plus it is around the corner from several tennis clubs and close to the east. The subdued luxury of the arc house. It has two floors and four rooms, but most of the home sits below ground. The median home value in east hampton north is $1,014. This iconic hamptons house has sold for $2.17 million. Was a custom design for a couple and their two dogs. Heather evans 8 years ago. Maziar behrooz architecture have designed the arc house, a single family home located in east hampton, new york. Completed in 2010 in east hampton, united states. 50 green hollow rd, east hampton. These arc house east hampton was designed for a couple who wanted a spacious home, without appearing algograndioso.

Completed by studio maziar behrooz architecture, the arc house was designed for a couple and their two dogs. The arc house and its sublime garden. The arc house is a private residence designed for a couple and their two big dogs. July 16, 2019 | by: Overlooking the arc structure from the adjacent building.

Aeccafe Arc House In East Hampton New York By Mb Architecture
Aeccafe Arc House In East Hampton New York By Mb Architecture from i1.wp.com
Was a custom design for a couple and their two dogs. To make space for these lower levels. Luxury arc house in east hampton. Built for a couple and their two big dogs, the residence boasts roughly 6,400 square feet of space. The arc house, is also located close to both the beaches and downtown shopping in east hampton village and wainscott, plus it is around the corner from several tennis clubs and close to the east. A couple's east hampton home reflects their desire to keep a low profile. July 16, 2019 | by: This new contemporary home was designed for a couple and their two big dogs and is located.

Its industrial appearance is a result of adapt.

No rules, reaching, in the end, the surprise element: An unusual east hampton home that the arc house, built in 2010 and designed by maziar behrooz, will soon return to the hamptons'. Single family detached, 3,000 sf on ground floor, 3,600 sf on lower (cellar) level hamptons, ny. Completed in 2010 in east hampton, united states. They spared nothing in the hamptons real estate is on the high end; Maziar behrooz architecture have designed the arc house, a single family home located in east hampton, new york. Located on the east end of long island in east hampton, new york on three forested acres, the arc house is a private modern residence designed with a. The architect then decided to bury part of the building. Built in 2010, the house was put on the market in 2013, asking $5m. The arc house, is also located close to both the beaches and downtown shopping in east hampton village and wainscott, plus it is around the corner from several tennis clubs and close to the east. The subdued luxury of the arc house. The arc house is a private residence designed for a couple and their two big dogs. Luxury arc house in east hampton.

The arc house, is also located close to both the beaches and downtown shopping in east hampton village and wainscott, plus it is around the corner from several tennis clubs and close to the east. July 16, 2019 | by: A unique architectural home in east hampton, new york, has been offered for sale by the u.s. A uniquely shaped home in east hampton known as the arc house has sold for $2.17 million — far less than its value. Due to prior conflicts with the previous.

The Arc House By Green Builder Media Shelter Dynamics Kitcheneering Align3d Inhabitat Green Design Innovation Architecture Green Building
The Arc House By Green Builder Media Shelter Dynamics Kitcheneering Align3d Inhabitat Green Design Innovation Architecture Green Building from inhabitat.com
Voir plus d'idées sur le thème maison voûte, maison, maison de hobbit. The arc house is yet to be priced. 50 green hollow rd, east hampton. Maziar behrooz architecture have designed the arc house, a single family home located in east hampton, new york. Its industrial appearance is a result of adapt. Built in 2010, the house was put on the market in 2013, asking $5m. Due to prior conflicts with the previous. The arc house at 50 green hollow road in east hampton.

The arc house at 50 green hollow road in east hampton.

The arc house and its sublime garden. This luxury arc house in east hampton is truly a masterpiece! It is located in east hampton, new york, usa under a flight path of a local airport and close to a train track. The subdued luxury of the arc house. The beautiful green arc house rises above a level, green site in east hampton. You like this house, right? Single family detached, 3,000 sf on ground floor, 3,600 sf on lower (cellar) level. The seized property, an architectural outlier in the tony beach enzo morabito, top broker in the hamptons for douglas elliman, said he would price the property at. This iconic hamptons house has sold for $2.17 million. The arc house has two levels and a total surface of 6,500 sq. Due to prior conflicts with the previous. Its industrial appearance is a result of adapt. They spared nothing in the hamptons real estate is on the high end;

Posting Komentar

Lebih baru Lebih lama